resume
作品集
工具
Dark Theme
Back
30 January 2025
/ 1 min read
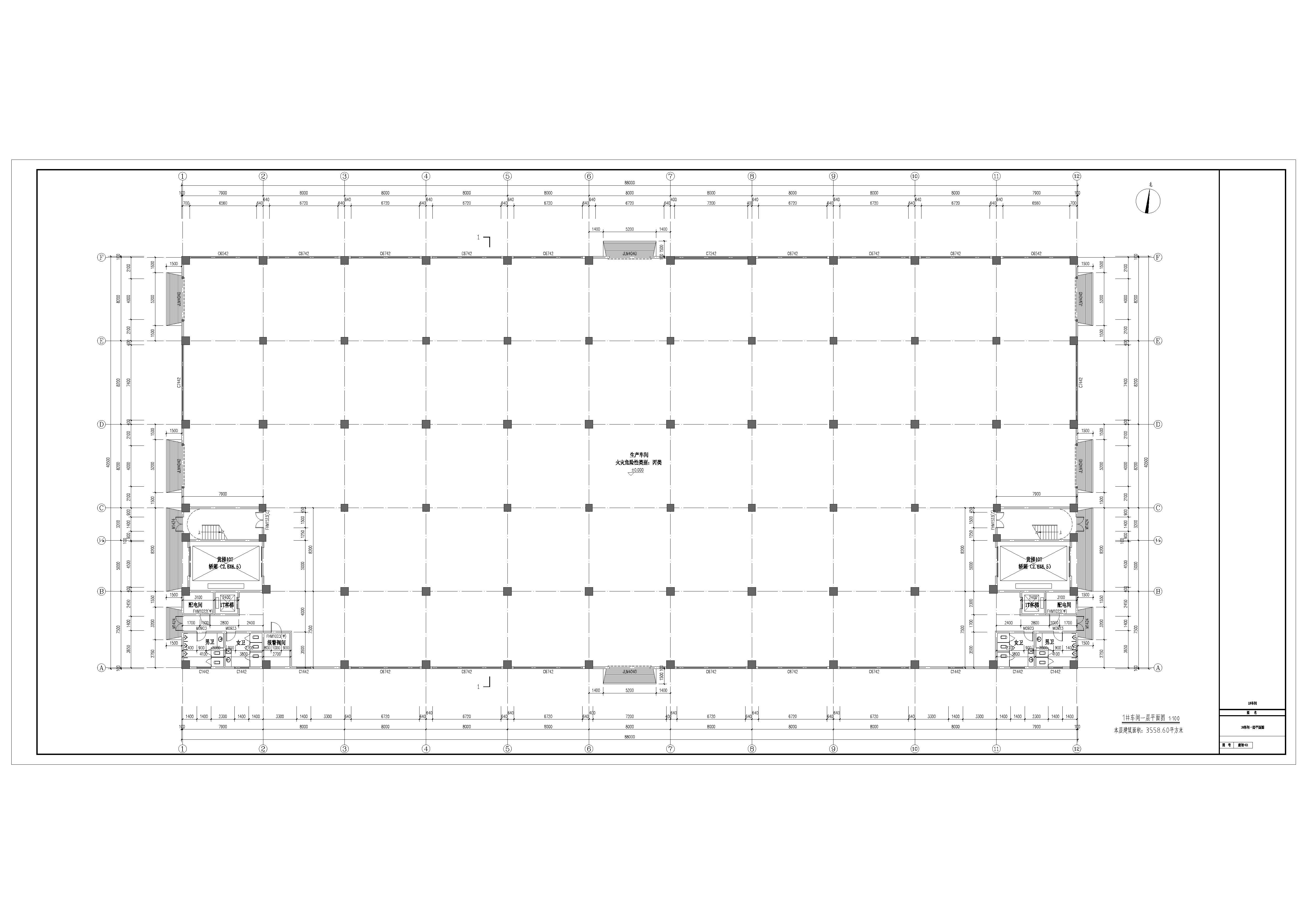
某高层厂房设计
markdown
Last Updated:
30 January 2025